VIVABOX
Box 3 TWO FLOORS
Box 3 TWO FLOORS
Couldn't load pickup availability
Introducing the VivaBox BOX3 with Two Floors and Terrace
Luxury Living with Ample Space, three rooms and a Private Terrace!
Reserve now with just $500 and recieve in 8 weeks
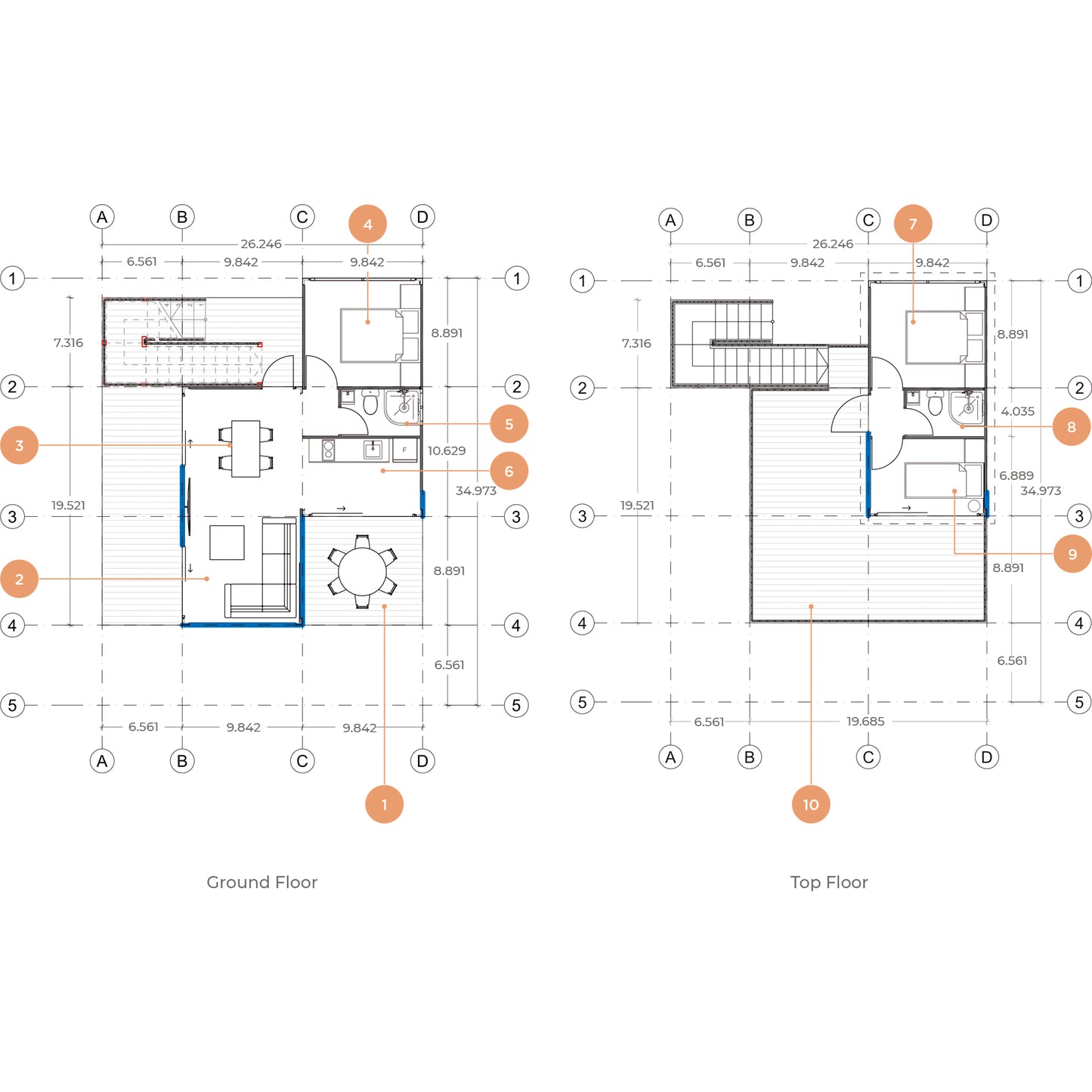
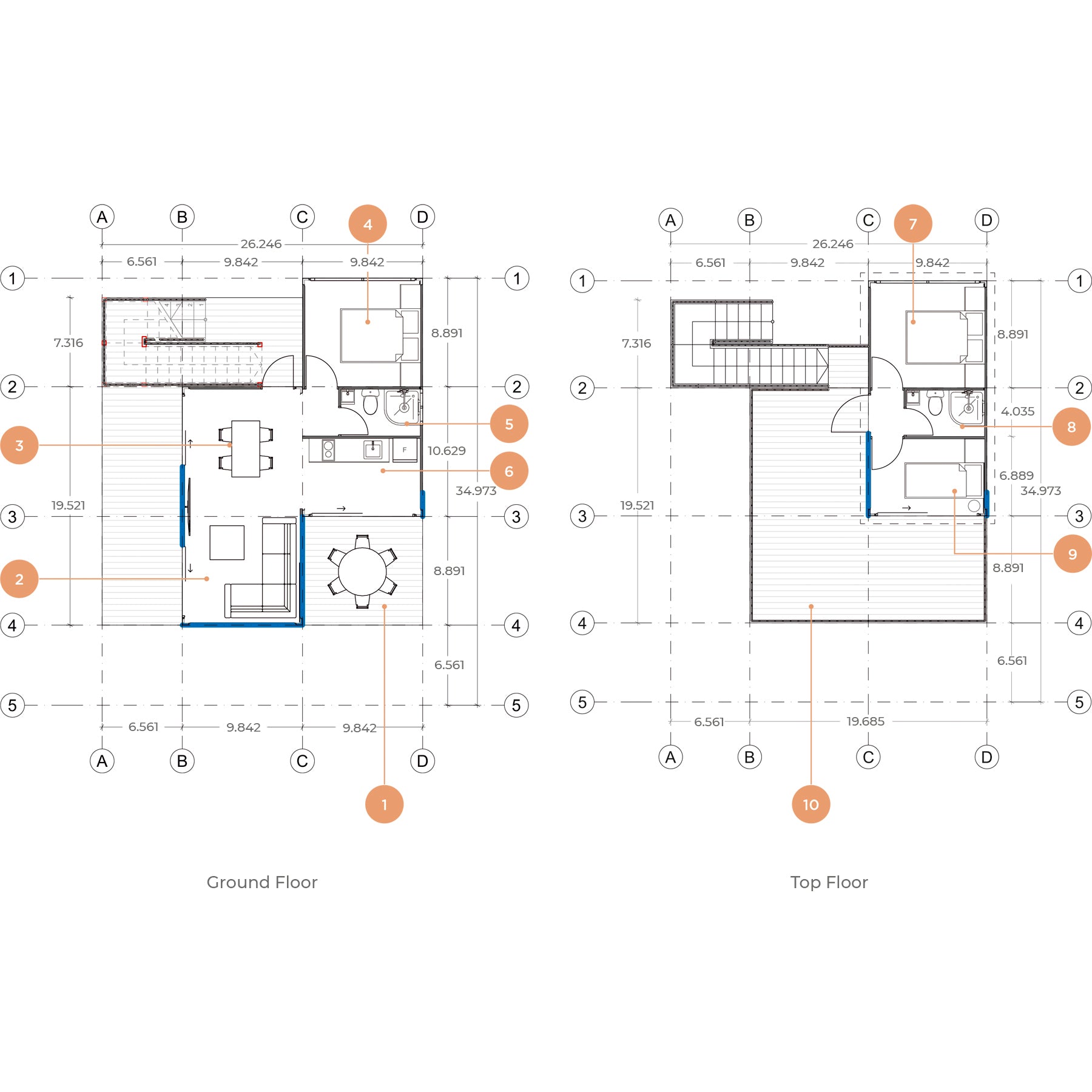
Spacious and Comfortable: With a master bedroom, two additional rooms, a full dining room, full living room, and a private terrace, this two-story VivaBox modular home offers the perfect blend of luxury and comfort.
Weatherproof and Energy Efficient: No need to worry about harsh weather conditions. Your VivaBox is weatherproof and energy efficient, ensuring a comfortable living environment all year round.
Private Terrace: Enjoy a perfect grill night on your private terrace, perfect for outdoor entertaining or a quiet night under the stars. *
Pre-Installed Utilities: Plumbing, electrical, and HVAC systems come pre-installed, making it easy to connect utilities on-site.
Affordable and Convenient: With prices starting under $49,000, the VivaBox is an affordable and convenient option for those seeking a spacious and luxurious living space.
Don't miss out on the opportunity to own a comfortable and spacious two-story home with a private terrace. Reserve your VivaBox Modular House today!
*Terrace sold separately







Viva Box Process
Five simple steps
1.-Choose & Reserve
Choose your preferred Viva Box size and style from our collection and pay a fully refundable $500 deposit to reserve their unit and begin the remote property analysis process.
2.-Analysis
Approximately three weeks later, our team will call you to discuss your specific needs and preferences and review the requirements for your property. We will work with you to determine the best optios and features for your new modular home and ensure that it meets all of your needs.
3.-Project
We will send you a site plan, installation needs for review and approval.
Once you have reviewed and approved these documents, we will help you prepare a formal permit package so you can submit it to your local planning department.
4.-Permits and Licenses
Our Viva Box modular homes meet all of the legal requirements for the state of Texas.
Our specialists will provide you with all of the necessary to obtain the permits from your county and state. It is the customer's responsibility to apply for and obtain these permits.
5.- Delivery
Once the licenses and permits have been obtained, you can proceed with the full payment of your VivaBox, starting at $35,000. Finally, we will ship your VivaBox to its desired location, where you can start enjoying your new, comfortable, and convenient living space.
Why We are your best option.
VivaBox Features
Highlights
- Spacious and Comfortable Living: With one bedroom, full-size kitchen, complete bathroom, and closet, the VivaBox provides ample living space.
- Expandable Design: The option to add a terrace to your VivaBox allows for even more outdoor living space.
- Weatherproof and Energy Efficient: The VivaBox is designed to withstand harsh weather conditions and is energy efficient, providing a comfortable living environment all year round.
- Pre-Installed Utilities: Plumbing, electrical, and HVAC systems are pre-installed, making it easy to connect utilities on-site.
- Affordable: Prices start under $35,000, making the VivaBox a cost-effective option for those in need of a compact, yet functional, home.
- Convenient: With a compact size and pre-installed utilities, the VivaBox is a convenient option for those seeking a functional and affordable living space.
Financing
Our financing partners are available to assist with finding the best options for your new VivaBox modular home. Additionally, these homes may be eligible for a 30-year mortgage, providing even more flexibility and affordability.
Details
- Comfortable Living
- Weatherproof and Energy Efficient
- Affordable
- Convenient
- Flexible Financing